Критерии
Цена
 
Площ
кв.м.
 
кв.м.
Спални
 
Етаж
 
Година на строеж
 
Начин на отопление
Средство за отопление

Апартамент за продажба

Велико Търново, Картала

109.900€ | 214.945,72лв

 

Монс Пропъртис

БЕЗ КОМИСИОННА ОТ КУПУВАЧА!!!

Монс Пропъртис има удоволствието да ви представи за продажба двустаен апартамент, в новостроящ се затворен жилищен комплекс в кв. "Картала", гр. Велико Търново.

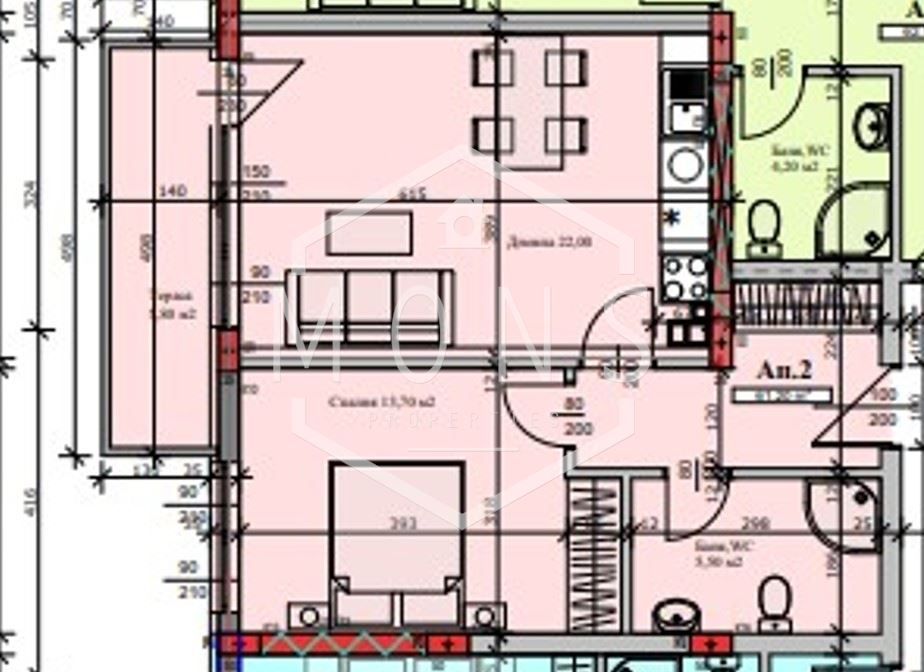
Обща площ на имота 67 кв.м. , като ЗП е 59 кв.м.
Ситуиран на шести жилищен етаж от шестетажна, новострояща се тухлена сграда с елегантна визия и висок клас материали, вложени в строителството.
Разпределението е както следва: антре, всекидневна с кухненски бокс, спалня, баня с тоалетна и тераса.

СГРАДА ЗАПАД: Етап - АКТ 14
Очакван Акт 15- Септември месец, Очакван Акт 16- Май месец 2026год.
Опция за закупуване на подземен гараж или паркомясто с гъвкави схеми на плащане.

Естетика и комфорт - в две бутикови сгради ИЗТОК и ЗАПАД скътани в периферията на престижния кв. “Картала”, гр. Велико Търново. В близост до парк и новострояща се детска градина.
-Контролиран достъп до комплекса чрез пръстов отпечатък или чип. Испански гранитогрес, естествен камък, ПВЦ дограма антрацит с троен стъклопакет, гръцки тухли KEBE, външна изолация BAUMIT, EPS стиропор, шпакловка и мазилка.
Към всеки апартамент е предвидена тераса със стъклен парапет с подвижен механизъм, който позволява повдигане и спускане чрез дистанционно управление. Удобство, което съчетава модерен дизайн и практичност, безкомпромисно строителство с усет и към най- малкия детайл.

Кв. Картала е разположен в една от най-високите и панорамни части на Велико Търново, с красиви гледки към Царевец, Стара планина и река Янтра. Районът е предпочитан заради спокойната атмосфера, близостта до борови гори и добрата инфраструктура. Налични са детска градина, парк, магазини, супермаркет, аптека, градски транспорт, а през 2024–2025 г. се изграждат нова детска градина, нови улици, тротоари, паркинги и зелени площи. Районът се развива динамично, с общински инвестиции в инфраструктура и нови зони за отдих.

Картала е чудесен избор както за семейства с деца, така и за инвеститори, търсещи дългосрочна стойност, тишина, чист въздух и удобства на ръка разстояние.

Код на офертата: 0224

Ние от Монс Пропъртис можем да Ви съдействаме със следните услуги:
 -Безплатно посредничество при кредитиране
от всички банки
-Юридически услуги

One bedroom apartment, in a newly constructed gated residential complex in. "Kartala", gr. In a new building in the residential area of Kartalovo.

NO COMMISSION FROM THE BUYER!!!

Mons Properties is pleased to present for sale a one bedroom apartment in a newly built gated residential complex in Kv. "Kartala", town of. The property is located in a residential complex in Carta Street, Veliko Tarnovo.

Total area of the property 67 sq.m. , as the floor area is 59 sq.m.
Situated on the sixth floor of a six-storey, newly built brick building with elegant appearance and high-end materials used in the construction.
The layout is as follows: entrance hall, living room with kitchenette, bedroom, bathroom with toilet and terrace.

BUILDING WEST: Stage - ACT 14
Expected Act 15 - September, Expected Act 16 - May 2026.
Option to purchase underground garage or parking space with flexible payment schemes.

Aesthetics and comfort - in two boutique buildings EAST and WEST tucked away in the periphery of the prestigious district. "Kartala", town of. Veliko Tarnovo. Close to a park and a newly built kindergarten.
-Controlled access to the complex via fingerprint or chip. Spanish granite, natural stone, PVC windows anthracite with triple glazing, Greek bricks KEBE, external insulation BAUMIT, EPS styrofoam, plaster and plaster.
Each apartment has a terrace with a glass railing with removable mechanism that allows raising and lowering by remote control. An amenity that combines modern design and practicality, uncompromising construction with a flair for the smallest detail.

Kv. Kartala is located in one of the highest and panoramic parts of Veliko Tarnovo, with beautiful views of Tsarevets, the Balkan Mountains and the Yantra River. The area is preferred for its peaceful atmosphere, proximity to pine forests and good infrastructure. There is a kindergarten, park, shops, supermarket, pharmacy, public transport, and in 2024-2025 a new kindergarten, new streets, sidewalks, parking lots and green areas are being built. The area is developing dynamically, with municipal investment in infrastructure and new recreational areas.

Carthala is a great choice for families with children as well as investors looking for long-term value, quiet, fresh air and amenities at their fingertips.

Offer Code: 0224

We at Mons Properties can assist you with the following services:
-Free lending brokerage
from all banks
-Legal services

ID
224
Квадратура
67 кв.м.
Цена на кв.м.
1.640€ | 3.208,15лв
Област
Картала (Велико Търново)
Спални
1
Етаж
6-ти
Година на строеж
2025
Отоплителна Система
Автономно отопление
Статус
Ново строителство
Допълнително
Луксозен

Удобства

  • Асансьор
  • Тераса
  • Охранителна система

Share