Критерии
Цена
 
Площ
кв.м.
 
кв.м.
Спални
 
Етаж
 
Година на строеж
 
Начин на отопление
Средство за отопление

Апартамент за продажба

Велико Търново, Картала

59.500€ | 116.371,89лв

 

Монс Пропъртис

БЕЗ КОМИСИОННА ОТ КУПУВАЧА!!!

Монс Пропъртис има удоволствието да ви представи за продажба едностаен апартамент, в новостроящ се затворен жилищен комплекс в кв. "Картала", гр. Велико Търново.

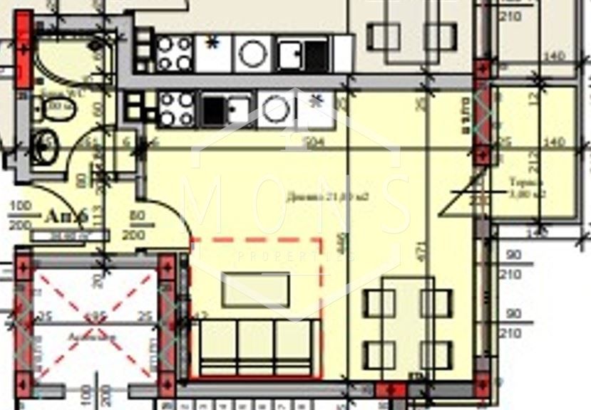
Обща площ на имота 40 кв.м., като ЗП е 36 кв.м.
Ситуиран на трети жилищен етаж от шестетажна, новострояща се тухлена сграда с елегантна визия и висок клас материали, вложени в строителството.
Разпределението е както следва: антре, баня и тоалетна, дневна с кухненски бокс и тераса.

СГРАДА ЗАПАД: Етап - АКТ 14
Очаква се да бъде напълно завършен и въведен в експлоатация до края на 2026 година.
Опция за закупуване на подземен гараж или паркомясто с гъвкави схеми на плащане.

Естетика и комфорт - в две бутикови сгради ИЗТОК и ЗАПАД скътани в централната част на престижния кв. “Картала”, гр. Велико Търново. В близост до парк и новострояща се детска градина.
-Контролиран достъп до комплекса чрез пръстов отпечатък или чип. Испански гранитогрес, естествен камък, ПВЦ дограма антрацит с троен стъклопакет, гръцки тухли KEBE, външна изолация BAUMIT, EPS стиропор, шпакловка и мазилка.
Към всеки апартамент е предвидена тераса със стъклен парапет с подвижен механизъм, който позволява повдигане и спускане чрез дистанционно управление. Удобство, което съчетава модерен дизайн и практичност, безкомпромисно строителство с усет и към най- малкия детайл.

Кв. Картала е разположен в една от най-високите и панорамни части на Велико Търново, с красиви гледки към Царевец, Стара планина и река Янтра. Районът е предпочитан заради спокойната атмосфера, близостта до борови гори и добрата инфраструктура. Налични са детска градина, парк, магазини, супермаркет, аптека, градски транспорт, а през 2024–2025 г. се изграждат нова детска градина, нови улици, тротоари, паркинги и зелени площи. Районът се развива динамично, с общински инвестиции в инфраструктура и нови зони за отдих.

Код на офертата: 0218

Ние от Монс Пропъртис можем да Ви съдействаме със следните услуги:

 -Безплатно посредничество при кредитиране
от всички банки

-Юридически услуги

One bedroom apartment, in a newly constructed gated residential complex in. "Kartala", gr. In a new complex in Kartalovo.

NO COMMISSION FROM THE BUYER!!!

Mons Properties is pleased to present for sale a one bedroom apartment, in a newly built gated residential complex in Kv. "Kartala", town of. The property is located in a residential complex in Kartala, Veliko Tarnovo.

The total area of the property is 40 sq.m., with a floor area of 36 sq.m.
Situated on the third residential floor of a six-storey, newly constructed brick building with elegant appearance and high-end materials used in the construction.
The layout is as follows: entrance hall, bathroom and toilet, living room with kitchenette and terrace.

BUILDING WEST: Stage - ACT 14
Expected to be fully completed and commissioned by the end of 2026.
Option to purchase underground garage or parking space with flexible payment schemes.

Aesthetics and comfort - in two boutique buildings EAST and WEST tucked away in the central part of the prestigious district. "Kartala", town. Veliko Tarnovo. Close to a park and a newly built kindergarten.
-Controlled access to the complex by fingerprint or chip. Spanish granite, natural stone, PVC windows anthracite with triple glazing, Greek bricks KEBE, external insulation BAUMIT, EPS styrofoam, plaster and plaster.
Each apartment has a terrace with a glass railing with removable mechanism that allows raising and lowering by remote control. An amenity that combines modern design and practicality, uncompromising construction with a flair for the smallest detail.

Kv. Kartala is located in one of the highest and panoramic parts of Veliko Tarnovo, with beautiful views of Tsarevets, the Balkan Mountains and the Yantra River. The area is preferred for its peaceful atmosphere, proximity to pine forests and good infrastructure. There is a kindergarten, park, shops, supermarket, pharmacy, public transport, and in 2024-2025 a new kindergarten, new streets, sidewalks, parking lots and green areas are being built. The area is developing dynamically, with municipal investment in infrastructure and new recreational areas.

Offer code: 0218

We at Mons Properties can assist you with the following services:

-Free credit mediation
from all banks

-Legal services

ID
218
Квадратура
40 кв.м.
Цена на кв.м.
1.488€ | 2.909,30лв
Област
Картала (Велико Търново)
Спални
1
Етаж
3-ти
Година на строеж
2025
Отоплителна Система
Автономно отопление
Статус
Ново строителство
Допълнително
Луксозен

Удобства

  • Асансьор
  • Тераса
  • Охранителна система

Share