Критерии
Цена
 
Площ
кв.м.
 
кв.м.
Спални
 
Етаж
 
Година на строеж
 
Начин на отопление
Средство за отопление

Апартамент за продажба

Велико Търново, Картала

134.900€ | 263.841,47лв

 

Монс Пропъртис

БЕЗ КОМИСИОННА ОТ КУПУВАЧА!!!

Монс Пропъртис има удоволствието да ви представи за продажба тристаен апартамент, в новостроящ се затворен жилищен комплекс в кв. "Картала", гр. Велико Търново.

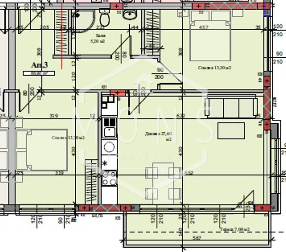
Обща площ на имота 100 кв.м. , като ЗП е 86 кв.м.

Ситуиран на втори жилищен етаж от шестетажна, новострояща се тухлена сграда с елегантна визия и висок клас материали, вложени в строителството.
Разпределението е както следва:Антре, баня и тоалетна, дневна с кухненски бокс, две спални и тераса.

СГРАДА ИЗТОК: Етап - АКТ 14
Очакван Акт 15-Септември месец, Очакван Акт 16-декември 2026год.
Опция за закупуване на подземен гараж или паркомясто с гъвкави схеми на плащане.

Естетика и комфорт - в две бутикови сгради ИЗТОК и ЗАПАД скътани в периферията на престижния кв. “Картала”, гр. Велико Търново.В близост до парк и новострояща се детска градина.
-Контролиран достъп до комплекса чрез пръстов отпечатък или чип. Испански гранитогрес, естествен камък, ПВЦ дограма антрацит с троен стъклопакет, гръцки тухли KEBE, външна изолация BAUMIT, EPS стиропор, шпакловка и мазилка.
Към всеки апартамент е предвидена тераса със стъклен парапет с подвижен механизъм, който позволява повдигане и спускане чрез дистанционно управление. Удобство, което съчетава модерен дизайн и практичност, безкомпромисно строителство с усет и към най- малкия детайл.

Предлагат се функционално разпределени тристайни апартаменти, разположени на 4ти, 5ти и 6ти етаж в Сграда „Изток“.

Кв. Картала е разположен в една от най-високите и панорамни части на Велико Търново, с красиви гледки към Царевец, Стара планина и река Янтра. Районът е предпочитан заради спокойната атмосфера, близостта до борови гори и добрата инфраструктура. Налични са детска градина, парк, магазини, супермаркет, аптека, градски транспорт, а през 2024–2025 г. се изграждат нова детска градина, нови улици, тротоари, паркинги и зелени площи. Районът се развива динамично, с общински инвестиции в инфраструктура и нови зони за отдих.

Картала е чудесен избор както за семейства с деца, така и за инвеститори, търсещи дългосрочна стойност, тишина, чист въздух и удобства на ръка разстояние.


Код на офертата: 0117


Ние от Монс Пропъртис можем да Ви съдействаме със следните услуги:
 -Безплатно посредничество при кредитиране
от всички банки
-Юридически услуги

Two-bedroom apartment in a newly built gated residential complex. "Kartala", gr. Veliko Tarnovo

NO COMMISSION FROM THE BUYER!!!

Mons Properties is pleased to present for sale a two-bedroom apartment, in a newly built gated residential complex in Kv. "Kartala", town of. The property is located in a residential complex in a residential area of Kartalovo.

Total area of the property 100 sq.m. , as the floor area is 86 sq.m.

Situated on the second floor of a six-storey, newly built brick building with elegant appearance and high-end materials used in the construction.
The layout is as follows: entrance hall, bathroom and toilet, living room with kitchenette, two bedrooms and terrace.

BUILDING EAST: Stage - ACT 14
Expected Act 15-September, Expected Act 16-May 2026.
Option to purchase underground garage or parking space with flexible payment schemes.

Aesthetics and comfort - in two boutique buildings EAST and WEST tucked away in the periphery of the prestigious district. "Kartala", town of. Close to a park and a newly built kindergarten.
-Controlled access to the complex by fingerprint or chip. Spanish granite, natural stone, PVC windows anthracite with triple glazing, Greek bricks KEBE, external insulation BAUMIT, EPS styrofoam, plaster and plaster.
Each apartment has a terrace with a glass railing with removable mechanism that allows raising and lowering by remote control. An amenity that combines modern design and practicality, uncompromising construction with a flair for the smallest detail.

Functionally distributed two-bedroom apartments are available, located on the 4th, 5th and 6th floors of the building "Iztok".

Kv. Kartala is located in one of the highest and panoramic parts of Veliko Tarnovo, with beautiful views of Tsarevets, the Balkan Mountains and the Yantra River. The area is preferred for its peaceful atmosphere, proximity to pine forests and good infrastructure. There is a kindergarten, park, shops, supermarket, pharmacy, public transport, and in 2024-2025 a new kindergarten, new streets, sidewalks, parking lots and green areas are being built. The area is developing dynamically, with municipal investment in infrastructure and new recreational areas.

Carthala is a great choice for families with children as well as investors looking for long-term value, quiet, fresh air and amenities at their fingertips.


Offer Code: 0117


We at Mons Properties can assist you with the following services:
-Free credit mediation
from all banks
-Legal services

ID
117
Квадратура
100 кв.м.
Цена на кв.м.
1.349€ | 2.638,41лв
Област
Картала (Велико Търново)
Спални
2
Етаж
2-ри
Гараж / Паркомясто
Да
Година на строеж
2025
Отоплителна Система
Автономно отопление
Статус
Ново строителство
Допълнително
Луксозен

Удобства

  • Асансьор
  • Тераса

Share