Критерии
Цена
 
Площ
кв.м.
 
кв.м.
Спални
 
Етаж
 
Година на строеж
 
Начин на отопление
Средство за отопление

Апартамент за продажба

Велико Търново, Картала

59.900€ | 117.154,22лв

 

Монс Пропъртис

БЕЗ КОМИСИОННА ОТ КУПУВАЧА!!!
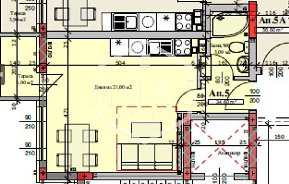
Монс Пропъртис има удоволствието да ви представи за продажба едностаен апартамент, в новостроящ се затворен жилищен комплекс в кв. "Картала", гр. Велико Търново.

Общата площ на имота е 42 кв.м. , а ЗП - 36 кв.м.
Ситуиран на трети жилищен етаж от шестетажна, новострояща се тухлена сграда с елегантна визия и висок клас материали, вложени в строителството.
Разпределението е както следва: входно антре, баня и тоалетна, дневна с кухненски бокс и тераса.

Намира се в СГРАДА ИЗТОК: Етап на строителство - АКТ 14
Очакван Акт 15-Септември месец 2025г, очакван Акт 16 -май месец 2026год.
Опция за закупуване на подземен гараж или паркомясто с гъвкави схеми на плащане.

Естетика и комфорт - в две бутикови сгради ИЗТОК и ЗАПАД, намиращи се в престижния кв. “Картала”, гр. Велико Търново. В близост до парк и новострояща се детска градина.
-Контролиран достъп до комплекса чрез пръстов отпечатък или чип. Испански гранитогрес, естествен камък, ПВЦ дограма антрацит с троен стъклопакет, гръцки тухли KEBE, външна изолация BAUMIT, EPS стиропор, шпакловка и мазилка.
Към всеки апартамент е предвидена тераса със стъклен парапет с подвижен механизъм, който позволява повдигане и спускане чрез дистанционно управление. Удобство, което съчетава модерен дизайн и практичност, безкомпромисно строителство с усет и към най- малкия детайл.

Предлагат се функционално разпределени едностайни апартаменти, разположени на 4-ти и 5-ти етаж в Сграда „Изток“.

Кв. Картала е разположен в една от най-високите и панорамни части на Велико Търново, с красиви гледки към Царевец, Стара планина и река Янтра. Районът е предпочитан заради спокойната атмосфера, близостта до борови гори и добрата инфраструктура. Налични са детска градина, парк, магазини, супермаркет, аптека, градски транспорт, а през 2024–2025 г. се изграждат нова детска градина, нови улици, тротоари, паркинги и зелени площи. Районът се развива динамично, с общински инвестиции в инфраструктура и нови зони за отдих.

Кв. Картала е чудесен избор както за семейства с деца, така и за инвеститори.


Код на офертата: 0113


Ние от Монс Пропъртис можем да Ви съдействаме със следните услуги:
 -Безплатно посредничество при кредитиране
от всички банки
-Юридически услуги

One bedroom apartment in a newly constructed gated residential complex in Kv. "Kartala", gr. Veliko Tarnovo
Mons Properties is pleased to present for sale a one bedroom apartment, in a newly built gated residential complex in Kv. "Kartala", town of. The property is located in a residential complex in Carta Street, Veliko Tarnovo.

The total area of the property is 42 sq.m. and the floor area - 36 sq.m.
Situated on the third floor of a six-storey, newly built brick building with elegant appearance and high-end materials used in the construction.
The layout is as follows: entrance hall, bathroom and toilet, living room with kitchenette and terrace.

Stage of construction - ACT 14
Expected Act 15 - September 2025, expected Act 16 - October 2025.
Option to purchase underground garage or parking space with flexible payment schemes.

Aesthetics and comfort - in two boutique buildings EAST and WEST, located in the prestigious district. "Kartala", the town of. The property is located in the prestigious location of Kartal. Close to a park and a newly built kindergarten.
-Controlled access to the complex via fingerprint or chip. Spanish granite, natural stone, PVC windows anthracite with triple glazing, Greek bricks KEBE, external insulation BAUMIT, EPS styrofoam, plaster and plaster.
Each apartment has a terrace with a glass railing with removable mechanism that allows raising and lowering by remote control. An amenity that combines modern design and practicality, uncompromising construction with a flair for the smallest detail.

Functionally distributed one-bedroom apartments are available, located on the 4th and 5th floors of the "Iztok" building.

Kv. Kartala is located in one of the highest and panoramic parts of Veliko Tarnovo, with beautiful views of Tsarevets, the Balkan Mountains and the Yantra River. The area is preferred for its peaceful atmosphere, proximity to pine forests and good infrastructure. There is a kindergarten, park, shops, supermarket, pharmacy, public transport, and in 2024-2025 a new kindergarten, new streets, sidewalks, parking lots and green areas are being built. The area is developing dynamically, with municipal investment in infrastructure and new recreational areas.

Carthala is a great choice for families with children as well as investors looking for long-term value, quiet, fresh air and amenities at their fingertips.


0113


We at Mons Properties can assist you with the following services:
-Free credit mediation
from all banks
-Legal services

ID
113
Квадратура
42 кв.м.
Цена на кв.м.
1.426€ | 2.789,39лв
Област
Картала (Велико Търново)
Спални
1
Етаж
3-ти
Гараж / Паркомясто
Да
Година на строеж
2025
Отоплителна Система
Автономно отопление
Статус
Ново строителство
Допълнително
Луксозен

Удобства

  • Асансьор
  • Охранителна система

Share